¡Conocé nuestro departamento modelo!

Te invitamos a descubrir

Spazio Cubik cuenta con 8 pisos y terraza, se encuentra ubicado en Caseros, en la calle Bonifacini 4444. Es de una accesibilidad extraordinaria a Capital Federal y otros partidos, ya que se encuentra ubicado a dos cuadras de la Av. San Martin, seis de la estación Caseros del ferrocarril San Martin y ocho del ferrocarril Urquiza. Como todos nuestros complejos residenciales, Spazio Cubik tiene un arte inigualable y vivir en el representa una oportunidad única de precio y calidad.
Ambientes: 1, 2, 3 y 4
Ascensores: 2
Estado: En construcción
Categoría: Premium
Bajas expensas

Bonifacini 4444, Caseros, Tres De Febrero

Amenities

Barra outdoor
Guarda bici
Microcine
Mirador
Parrillas
Piscina
Skylounge
Solarium
SUM

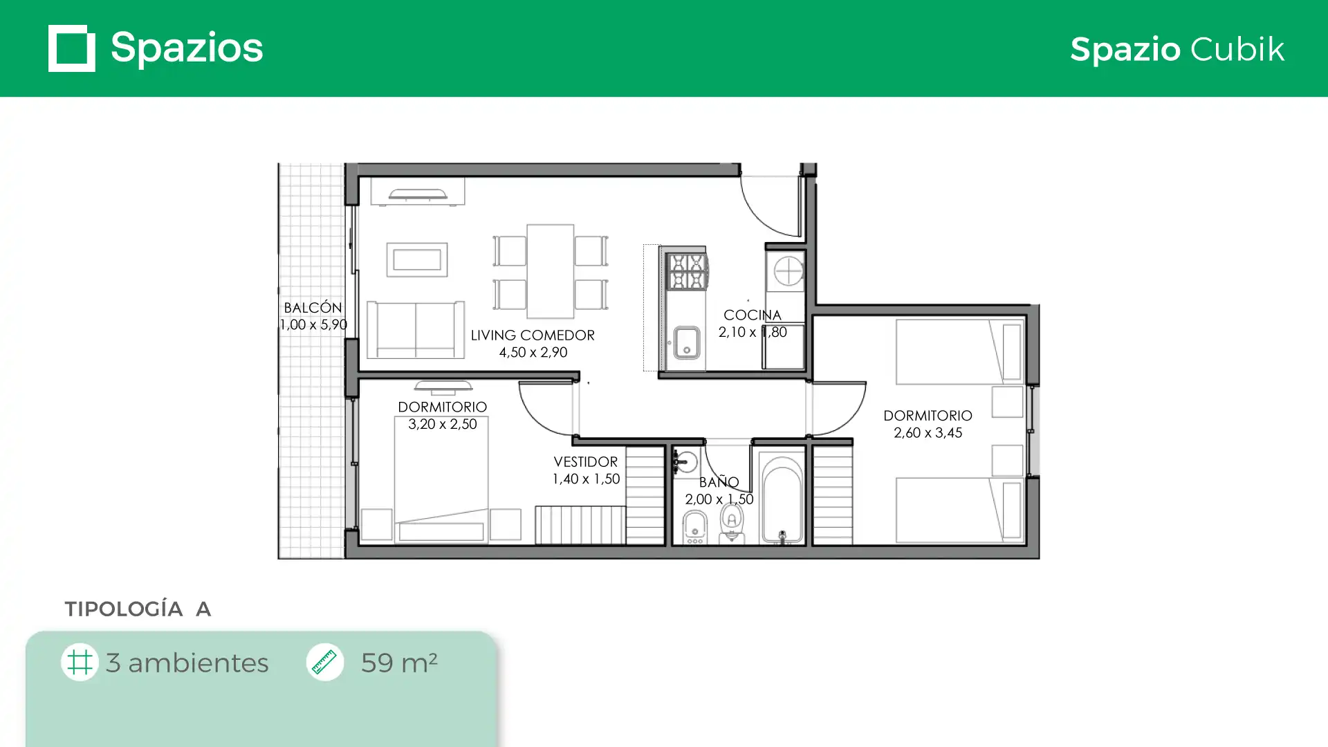
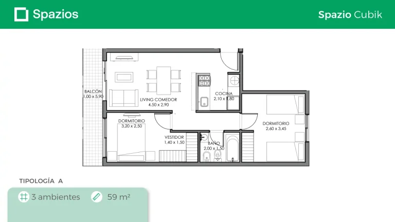
Planos

Agendá tu cita
Autoagenda 25